Jonkun aikaa ollaan mietitty, että laitetaanko hälyttimiä vai ei. Sähköurakkaa kilpailuttaessa jätettiin se pois ja sovittiin että katsotaan sitten kun on sähkötyöt siinä vaiheessa että tarvitsee päättää. No nyt pitäisi päättää. Sähkösuunnitelma meillä on tehty niin, että rikkari tulee. Yritin tuossa perehtyä aiheeseen ja aika nopeasti huomaa että tuo hälytinbisnes on tukkukauppaa sähköurakoitsijoille. Ei saa oikein järkevästi selville että mitä joku systeemi maksaa ja kikkareita mitä siihen pitää tilata. On TCP/IP moduulia, integraatiokorttia, RS-232 korttia jne. Huooh. Ei auta kun luottaa siihen, että sähköurakoitsija tarjoaa järkevää kokonaisuutta. Muuten näistä on aika mahdotonta ottaa selvää. Tai ei varmaan mahdotonta, mutta aika ja hermot ei riitä.
Talo on kuitenkin tilattu niin, että mm. ovitunnistimille on putket valmiina ovien yläpuolella seinäelementissä. No mitäs jos ei laiteta? Tarkoittaa sitten pintavetoja jos joskus haluaakin ne hälyttimet. Tai langattomia antureita, joita ilmeisesti saa aika helposti häirittyä nykyään jos nopealla googlauksella löytää laitteita joilla noita antureita voi lukea ja häiritä. Eli kai se on siedettävä vielä reilu touhutonni taas lisää ja laitettava ne hälyt kun on vielä katto auki ja saa ne putkitettua piiloon.
Kahta merkkiä on tullut esille, DSC ja Celotron. Onhan noita varmasti pilvin pimein markkinoilla, mutta toisesta olen saanut suositteluja ja toinen on sähköurakoitsijan idea. DSC on ilmeisesti Kanadalainen ja sitä näyttää maahantuovan FSM Group ja Celotron on Tamperelainen firma.
No mitä ajateltiin valvoa? Olen käsittänyt tämän homman niin, että paria-kolmea eri tasoa noissa hälyttimissä. Kuorisuojaus (=ovet), paloturvallisuus (=häkä- ja savuilmaisimet) ja liiketunnitus (=liiketutkat sisälle ja/tai ulos). Noita yhdistelemällä ja lisäämällä vähän modeemia etähallintaan on ilmeisesti perussetti. Lisänä näkyy saavan vielä kosteus- ja ikkuna-anturia, etälukutägiä ja koodinäppäimistöjä ja vaikka mitä. Tuumittiin, että meille riittää ovien valvonta, palovaroittimet, sisälle liiketutka ja ulos sireeni. Tuo liiketutka on vielä tutkinnassa, kun meillä on koiria. Ilmeisesti pitäisi olla saatavilla sellaisia tutkia, jotka ottavat huomioon lemmikit ja eivät laukaise niistä hälytystä. Koodinäppäimistöt autotalliin ja khh oven viereen + etähallintatoiminto. Kamerankin noihin saa (mm. Verisure tarjoaa palvelua, jossa hälytyksen aikana kamera kuvaa ja lähettää kuvan vartiointiliikkeelle). Sen verran olen vainoharhainen, että varsinkin katsottuani CITIZENFOUR-dokkarin Edward Snowdenista ja kuinka lähes kaikkea voi nykyään kuunnella ja kaapata, en jaksa uskoa että tuo kamera lähettää kuvaa vain sillä hetkellä kun hälytys tulee. Meillä on jo nykyään IP-kamera koirien valvontaa ja se toimii näppärästi puhelimen appsillä oikeastaan mistä vaan kunhan on datayhteys. Joten eiköhän me samanlainen systeemi laiteta tuonne Latoonkin.
Ovien lukituksesta kirjoittelen vielä myöhemmin, kunhan pari asiaa selviää. Siihen meillä on tulossa vähän perinteisestä poikkeavaa ratkaisua


En ole paljon oman taloni turvajärjestelmistä omassa raksablogissani kertonut, mutta jospa nyt täällä ei paljon pitkäkyntisiä liiku, niin kerron ainakin joitakin yleisperiaatteita, miten rikkarisysteemeitä voi rakentaa, tai miten itse olen ehkä rakentanutkin.
VastaaPoistaMeilläkin on koira - ja koiran jäädessä kotiin rikkarissa on mahdollista kytkeä pelkästään kuorivalvonta, jolloin liikeilmaisimia ei kytketä, ja koira voi liikuskella vapaasti.
Palohälyttimet - siis savuilmaisimet - meillä on kaikki kytketty toinen toisiinsa, ja myös rikkariin, eli palohälytys laukaisee myös hälytyksen.
Jos putkitukset on valmiina, kannattaisiko niihin vetää johdot valmiiksi (myöhemmän ajan pintavetojen välttämiseksi), vaikka muuten ei rikkaria haluaisikaan? Jolloin sen saa sitten jälkiasennettua, jos kuitenkin mieli muuttuu.
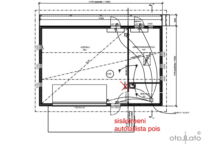
Meillä ei ole ulkosireeniä, mutta sisäsireeni on, ja se on aika hankalassa paikassa niin, ettei siihen pääse heti käsiksi. Se huutaa niin lujaa, että korviin sattuu - joten jos sen ääntä edes 5 minuuttia jaksaa kuunnella niin aika fakiiri pitää olla. Puhumattakaan, että jos olisi luvatta talossa ja tietäisi että hälytys tapahtui ja joku on tulossa, niin aika kovahermoinen pitää olla, jos ei silloin harkitse karkuun lähtemistä (enempien vahinkojen välttämiseksi).
Ammattimiehet tosiaan osaa häiritä tai hiljentää langattomia laitteita ja vähemmän ammattimiehet (siis suomeksi huumehörhöt) osaavat myös sabotoida langallisia laitteita (sivuleikkurilla johto poikki), mistä taas oikeat ammattimiehet tietää ettei se ole ollenkaan järkevää, kun siitä aiheutuu hälytys. Tässä kohtaa voi esim. laittaa feikkikameran niin, että se on helposti havaittavissa, ja helposti tuhottavissa, eli se ei filmaa mitään, mutta sen tuhoamisesta aiheutuu hälytys. Jolloin lähistöllä oleva oikea kamera filmaa sitä feikkikameraa, ja silloin saadaan tekijästä kuvat sähköpostiin jo ennen kuin mitään varsinaista vahinkoa ehtii edes tapahtua.
On myös mahdollista tehdä kahden erillisen systeemin rinnakkaisjärjestelmä niin, ettei niitä molempia saa millään pois päältä (ei edes itse) ilman etteikö jompikumpi hälyttyäisi. Toinen järjestelmä voi olla hyvinkin yksinkertainen, esim. mökkikamera tai riistakamera. Sen kautta on välillä itsekin mukava kuikuilla tyhjillään olevaa taloa, ja se (siis mökkikamera) kertoo myös lämpötilan.
Itse en ottaisi rikkaria sähköliikkeen/sähkömiehen kautta, vaan lukkoliikkeen tai vartiointiliikkeen kautta, jotka voi aina kilpailuttaa, ja jotka myös ihan ilmaiseksi ja laitekaupan toivossa tekevät hyviä suunnitelmia, jolloin systeemistä tulee varmuudella toimiva ja läpipääsemätön. Ja se ei tarkoita samaa kuin kallis.
Kiitos Mika kommentoinnista. Olen ymmärtänyt, että on olemassa sellaisia liiketutkia mitkä voi olla päällä vaikka lemmikit on kotona. Jotenkin tunnistaa koosta ilmeisesti.
PoistaKuten tuossa kirjoitinkin, kyllä mekin varmaan rinnakkainen systeemi tehdään, ainakin jollain asteella. IP-kamerat ja niiden sovellukset on nykypäivänä aika hintakilpailukykyisiä.
Tuo lukko-/vartiointiliike on hyvä pointti!
Meille tuleva tee se itse versio apinoiden eri paikoista ongittua tietoa...Kerroskohtaisesti kootaan väyläohjaukset ja rikkarijutut jakoboxiin ja jakoboxilta sitten tekniseen tilaan runkolinja. Huoneista tulee kojerasialta ja ulko-ovilta putket jakoboxin. Ulko-ovilta kahvapuolelle magneettikytkin jonka saa uppona erittäin nätisti ja huomaamattomasti. Saranapuolelta putki myös jos haluaa sähkölukon.
VastaaPoistaMiettii sopivan kulman liiketunnistimille joka putki seinään tai rasia kuten itselläni sitten nämä ja ovilta putket sopivaan paikkaan niin järjestelmän voi asentaa myöhemminkin.
tiskikoneen alustan, seinäwc kotelon ja jakotukkien kotelon olen yhdstänyt jakoboxiin tai liiketunnistimen jakorasiaan jolloin saadaan vuotovahdit systeemiin.
Mitä tulee laitteeseen niin en ottaisi muuta kuin DSC poweria löytyy käytettynä ja uutena varsin kattavasti. Liiketunnistimia löytyy esim DSC merkillä monenlaista perusmallista lasinrikkoon ja mikroaaltomalliin. Lemmikkieläimien huomiointi löytyy myös.
Ulko-ovien pieleen putki tai rasia järjestelmän käyttöpaneelia varten. Löytyy koodinäppistä ja lätkillä toimivia lukijapaneelia jne.
Lisäksi pistin pariin taktiseen kohtaan kattoon RJ45 rasian niin saa poe syötetyn IP kameran kytkettyä. Ja vaikka wlan accesspointin.
Pelkästään riksaria varten saa aika helpolla mutta itse ymppäsin siihen mahdollisuuden kaikkeen muuhunkin mitä nyt mieleen tuli niin homma laajeni aikalailla. Seinät ja katot aika moisessa putkiviidakossa mutta sinne ne jää piiloon...
Tuo Mikan kommentti hälyfirmojen käytöstä on totta, ostaa laitteet ja ohjelmoinnin sieltä niin saa todennäköisesti samalla vinkit laitteiden sijoitteluun.
Meille asennettiin heti taloa rakennettaessa hälytysjärjestelmä kaikilla tasoilla, eli ovia, paloturvallisuutta ja sisätilojen liikettä valvotaan. Nyt piakkoin olisi tilattava hälytysjärjestelmän huolto, näitäkin systeemejä on hyvä huoltaa. Tuollainen koirien valvonta puhelimen kautta kuulostaa hyvältä ratkaisulta kaikille koiraihmisille.
VastaaPoista